IMER Access IM 4080 UL

Ollós emelő
Hosszabbítható kosárral

Motor típusa:

elektomos

Emelési kapacitás:

230 kg

Géptömeg:

130 kg

Max. sebesség:

4 km/h

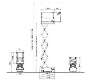
Max. munkamagasság:

5800 mm

Max. padlómagasság:

3800 mm

Ollók száma:

3 db

Gépszélesség:

780 mm

- Kosár szélesség: 780 mm
- Emelőkosár hossza növelhető: +660 mm-rel
- Legnagyobb hosszméret: 1494 mm
- Max személyek száma: 1 fő
- Hajtómotor: 24V DC
- Emelőegység- hidraulikus: 24 V/2,1 kW
- Akkumulátor haladáshoz: 2x12/85 C5
- Töltő: 24 V/20 A
- Olajtartály térfogata: 2 liter
- Haladási sebesség kiemelt kosárral: 0,6 km/h
- Emelkedő, amin felmegy: 25 %
- Belső fordulási sugár: 0,24 m
- Külső fordulási sugár: 1,55 m
- Gumiméret: 250x80 mm
- Súly: 700 Kg

Alapfelszereltség:

• AC elektromos hajtómotorok az első kerekeken
• Negatív működésű elektromágneses rögzítőfékek 
• Manuális szerelőkosár hosszabbítás 660 mm
• Kézi vészsüllyesztés
• Zuhanásgátlő szeleppel ellátott munkahengerek
• AGM akkumulátorok 24V
• Akkumulátortöltő automatikus lekapcsolással
• Üzemelést jelző hang , üzemóraszámláló, kürt 
• Dölésszög érzékelő, és figyelmezteő rendszer
• Mechanikus hajtás oldhatósága
• Tömör gumi, nyomot nem hagyó abroncsok
• Kátyúvédelem
• Akkumulátor szintszabályozás alacsony feszültség elleni védelemmel
• Összecsukható védőkorlátok
• Túlterhelés érzékelő
• CE - EN 280
• Elkészített kábel 230 V-os aljzathoz a platformon
• Villogó jelzőfény
• Vezérlőpult a platformon kapacitív gombokkal, proporcionális vezérlés és diagnosztika

 

Az IMER Access IM 4080 UL ollós emelő kültéri használatra is alkalmas az alábbi feltételek mellet:

Kültéri max munkamagasság: 2250 mm
Kültéri max padlómagasság: 4250 mm
Max személyek száma: 1 fő

 

Kapcsolódó termékek

Vissza az oldal tetejére